Skip to main content

Properties

SAVANNAH EAST

A state-of-the-art, modern, energy-efficient, LEED-certified and A-class office space to match the country’s reputation for doing business. The property is a signature address, located on Queen’s Park, Savannah's eastern side, with onsite parking and amenities that meet our tenants every need and a location that provides both convenience and prestige.

Our Gallery

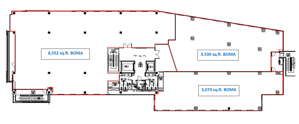
Layout Plan

No PDF found.

No aerial shots found.